Skip to main content Skip to footer

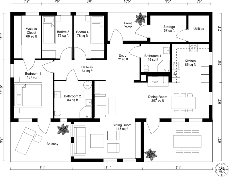
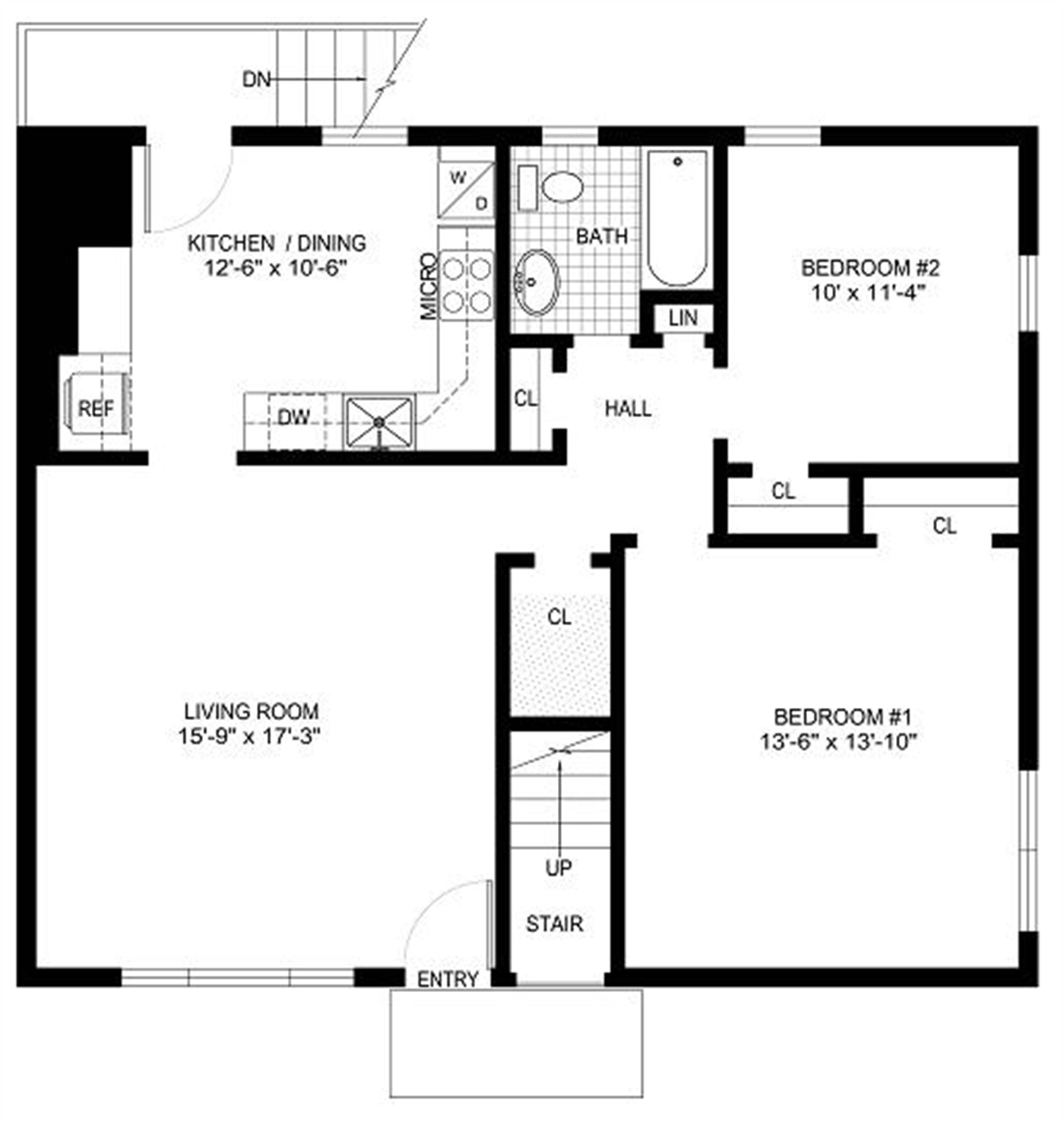
Floor Plans

Our Floor Plans Include:

 

Overview Floor Plan

Room by Room Breakdown

Detailed Measurements

Your Logo and Watermark Applied (alternatively, the plan can be supplied unbranded)

 

Floor plans can be booked as a standalone service or for a reduced rate as part of any other combined property visit. Please get in touch for more in formation.

 

Completion:

 

The finished floor plan is converted to PDF and JPEG and distributed electronically to our clients via our cloud portal within 24 hours.

Cookie consent

Learn how we use cookies on this website.